| 価格 | 2,680万円 ![]() |
||||
|---|---|---|---|---|---|
| 所在地 | 千葉県野田市七光台
この地域周辺の物件を見る |
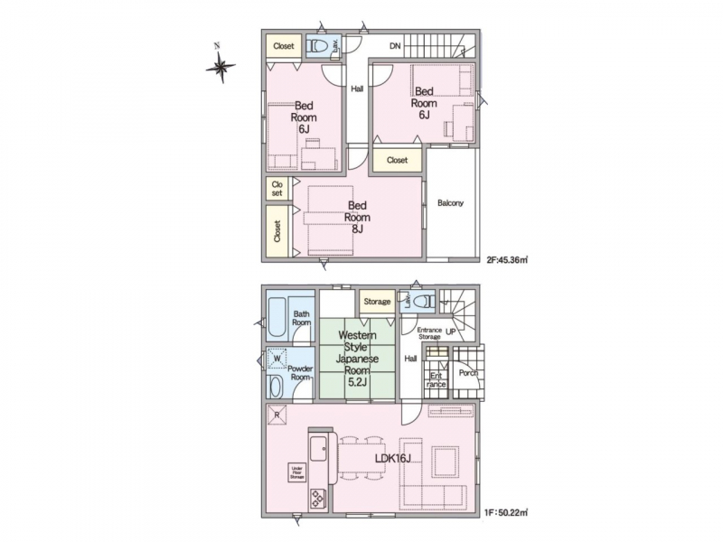
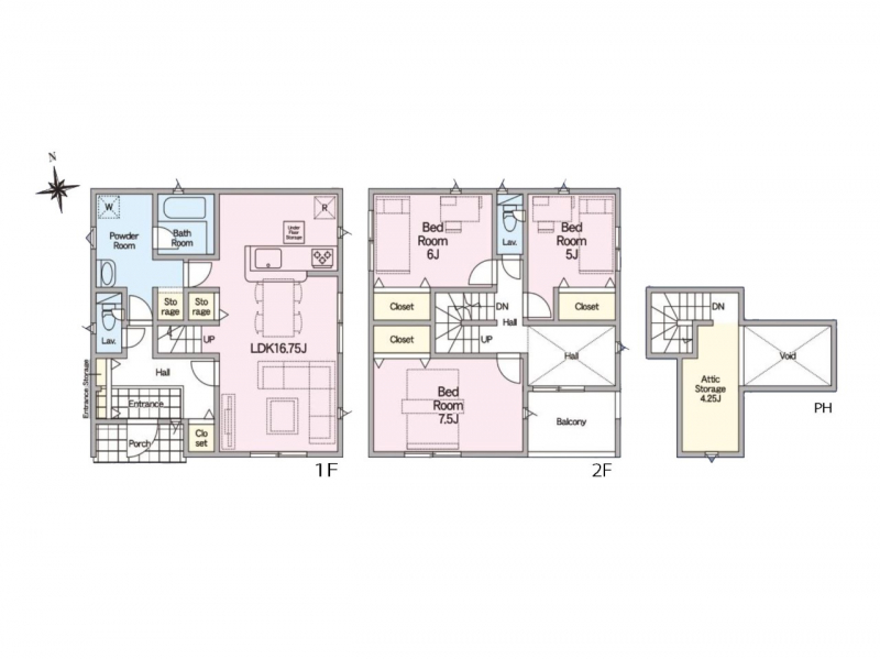
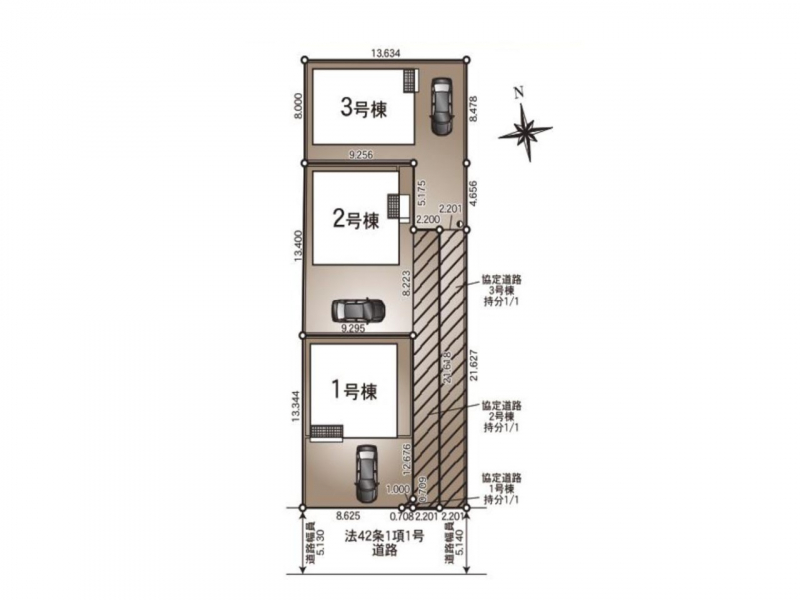
土地面積 | 171.85m² (51.98坪) | 建物面積 | 95.58u |
| 築年月 | 2026年2月築 | 間取り | 4LDK (-) | ||
| 交通 |
東武野田線 七光台 徒歩16分
東武野田線 川間 徒歩23分 |
||||
電話をかける(携帯・PHS可)
0120-362-312
「ホームページを見た」とお伝え下さい。
お問い合わせ番号をお伝えください
RHS-990982612
| 特徴 |
|
|---|---|
| セールスコメント |
| 採光面 | - | 構造/階数 | 木造/地上2階建 |
|---|---|---|---|
| 建ぺい率 | 60(%) | 容積率 | 200(%) |
| 駐車場 | 有 | 現況/引渡し | 空家/即時 |
| 土地権利 | 所有権 | 私道負担面積 | - |
| 接道状況 | 接道: 南 2.2m 公道 道路幅: 5.1m | 用途地域 | 工業地域
|
| セットバック | なし | 法令上の制限 | - |
| 地目 | 畑 | 地勢 | 平坦 |
| 建築確認番号 | 第25UDI1W建08029号 | 都市計画 | 市街化区域 |
| 取引態様 | 仲介 | ||
| 情報更新日 | 2026年03月14日 | 次回更新日 | 2026年03月28日 |
| 小学校区 | 野田市立七光台小学校 (千葉県野田市) この学区の他の物件を見る |
中学校区 | 北部中学校 (千葉県野田市) この学区の他の物件を見る |
|---|
電話をかける(携帯・PHS可)
0120-362-312
「ホームページを見た」とお伝え下さい。
お問い合わせ番号をお伝えください
RHS-990982612
| 年利率 | % |
||
|---|---|---|---|
| ボーナス払い | 返済年数 | ||
| 頭金 | 直接入力する | 万円 | |

毎月のご返済額 |
ボーナス(×年2回) |
物件価格2,680万円 |
![]() |
![]() |
野田市七光台
2580万円〜2780万円 |
電話でお問い合わせ
ME不動産千葉
|
電話をかける 0120-362-312 ※「ホームページを見た」とお伝えください。 |
お問い合わせ番号をお伝えください RHS-990982612 |
|---|
ご来店していただいたお客様にギフト券3000円分プレゼント中です(1組1回限り)。お住まい探しならローンに詳しいME不動産千葉にお任せください。