| 価格 | 5,180万円 ![]() |
||||
|---|---|---|---|---|---|
| 所在地 | 千葉県市川市北国分2丁目
この地域周辺の物件を見る |
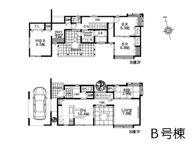
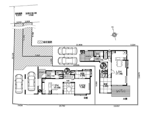
土地面積 | 219.43m² (66.38坪) | 建物面積 | 121.77u |
| 築年月 | 2026年11月築 | 間取り | 4LDK (-) | ||
| 交通 |
北総鉄道 北国分 徒歩12分
北総鉄道 矢切 徒歩14分 |
||||
電話をかける(携帯・PHS可)
0120-362-312
「ホームページを見た」とお伝え下さい。
お問い合わせ番号をお伝えください
RHS-991007801
| 特徴 |
|
|---|---|
| セールスコメント | うち1F車庫面積:13.5u含む |
| 採光面 | - | 構造/階数 | 木造/地上2階建 |
|---|---|---|---|
| 建ぺい率 | 40(%) | 容積率 | 80(%) |
| 駐車場 | 有 | 現況/引渡し | -/2026年12月下旬 |
| 土地権利 | 所有権 | 私道負担面積 | - |
| 接道状況 | 接道: 北 公道 道路幅: 4m | 用途地域 | 第一種低層住居専用地域
|
| セットバック | なし | 法令上の制限 | - |
| 地目 | 山林 | 地勢 | |
| 建築確認番号 | 千建住第252388号 | 都市計画 | 市街化区域 |
| 取引態様 | 仲介 | ||
| 情報更新日 | 2026年04月10日 | 次回更新日 | 2026年04月24日 |
| 小学校区 | 市川市立国府台小学校 (千葉県市川市) この学区の他の物件を見る |
中学校区 | 第一中学校 (千葉県市川市) この学区の他の物件を見る |
|---|
電話をかける(携帯・PHS可)
0120-362-312
「ホームページを見た」とお伝え下さい。
お問い合わせ番号をお伝えください
RHS-991007801
| 年利率 | % |
||
|---|---|---|---|
| ボーナス払い | 返済年数 | ||
| 頭金 | 直接入力する | 万円 | |

毎月のご返済額 |
ボーナス(×年2回) |
物件価格5,180万円 |
![]() |
![]() |
市川市北国分2丁目
5180万円 |
電話でお問い合わせ
ME不動産千葉
|
電話をかける 0120-362-312 ※「ホームページを見た」とお伝えください。 |
お問い合わせ番号をお伝えください RHS-991007801 |
|---|
ご来店していただいたお客様にギフト券3000円分プレゼント中です(1組1回限り)。お住まい探しならローンに詳しいME不動産千葉にお任せください。