| 価格 | 3,790万円値下がり ![]() |
||||
|---|---|---|---|---|---|
| 所在地 | 千葉県千葉市緑区おゆみ野5丁目
この地域周辺の物件を見る |
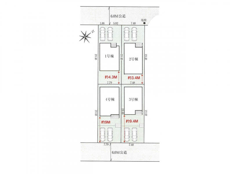
土地面積 | 145.78m² (44.1坪) | 建物面積 | 99.36u |
| 築年月 | 2026年1月築 | 間取り | 4LDK (-) | ||
| 交通 |
JR外房線 鎌取 千葉南警察署 バス13分 停歩3分
京成千原線 おゆみ野 徒歩33分 |
||||
電話をかける(携帯・PHS可)
0120-362-312
「ホームページを見た」とお伝え下さい。
お問い合わせ番号をお伝えください
RHS-990980743
| 特徴 |
|
|---|---|
| セールスコメント | 法22条区域 宅地造成等工事規制区域 景観法 都市再生特別措置法 高さ10m |
| 採光面 | - | 構造/階数 | 木造/地上2階建 |
|---|---|---|---|
| 建ぺい率 | 50(%) | 容積率 | 100(%) |
| 駐車場 | 有 | 現況/引渡し | -/2026年2月上旬 |
| 土地権利 | 所有権 | 私道負担面積 | - |
| 接道状況 | 接道: 北西 公道 道路幅: 6m | 用途地域 | 第一種低層住居専用地域
|
| セットバック | なし | 法令上の制限 | - |
| 地目 | 宅地 | 地勢 | |
| 建築確認番号 | 第HPA-25-10867-1号 | 都市計画 | 市街化区域 |
| 取引態様 | 仲介 | ||
| 情報更新日 | 2026年01月14日 | 次回更新日 | 2026年01月28日 |
| 小学校区 | 千葉市立小谷小学校 (千葉県千葉市緑区) この学区の他の物件を見る |
中学校区 | 泉谷中学校 (千葉県千葉市緑区) この学区の他の物件を見る |
|---|
電話をかける(携帯・PHS可)
0120-362-312
「ホームページを見た」とお伝え下さい。
お問い合わせ番号をお伝えください
RHS-990980743
| 年利率 | % |
||
|---|---|---|---|
| ボーナス払い | 返済年数 | ||
| 頭金 | 直接入力する | 万円 | |

毎月のご返済額 |
ボーナス(×年2回) |
物件価格3,790万円 |
![]() |
![]() |
千葉市緑区おゆみ野5丁目
3790万円〜3990万円 |
電話でお問い合わせ
ME不動産千葉
|
電話をかける 0120-362-312 ※「ホームページを見た」とお伝えください。 |
お問い合わせ番号をお伝えください RHS-990980743 |
|---|
ご来店していただいたお客様にギフト券3000円分プレゼント中です(1組1回限り)。お住まい探しならローンに詳しいME不動産千葉にお任せください。