| 価格 | 3,200万円 ![]() |
||||
|---|---|---|---|---|---|
| 所在地 | 千葉県佐倉市王子台1丁目
この地域周辺の物件を見る |
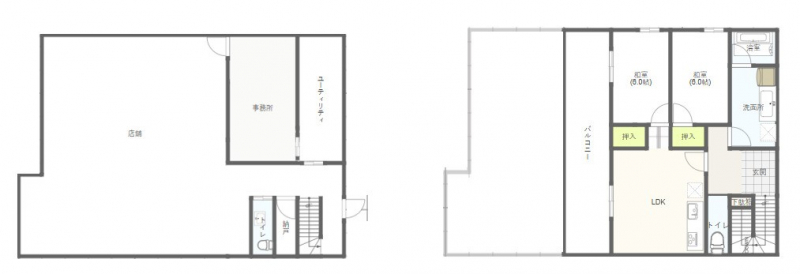
土地面積 | 174.76m² (52.86坪) | 建物面積 | 178.03u |
| 築年月 | 1990年11月築 | 間取り | 4SLDK (-) | ||
| 交通 |
京成本線 京成臼井 徒歩6分
京成本線 ユーカリが丘 徒歩42分 |
||||
電話をかける(携帯・PHS可)
0120-362-312
「ホームページを見た」とお伝え下さい。
お問い合わせ番号をお伝えください
RHS-9510360
| 特徴 |
|
|---|---|
| セールスコメント |
| 採光面 | - | 構造/階数 | S造/地上2階建 |
|---|---|---|---|
| 建ぺい率 | 80(%) | 容積率 | 200(%) |
| 駐車場 | - | 現況/引渡し | 居住中/相談 |
| 土地権利 | 所有権 | 私道負担面積 | - |
| 接道状況 | 接道: 東南 11m 公道 道路幅: 18m | 用途地域 | 近隣商業地域
|
| セットバック | なし | 法令上の制限 | - |
| 地目 | - | 地勢 | |
| 建築確認番号 | 都市計画 | - | |
| 取引態様 | 一般媒介 | ||
| 情報更新日 | 2026年03月08日 | 次回更新日 | 2026年03月22日 |
| 小学校区 | () |
中学校区 | () |
|---|
電話をかける(携帯・PHS可)
0120-362-312
「ホームページを見た」とお伝え下さい。
お問い合わせ番号をお伝えください
RHS-9510360
| 年利率 | % |
||
|---|---|---|---|
| ボーナス払い | 返済年数 | ||
| 頭金 | 直接入力する | 万円 | |

毎月のご返済額 |
ボーナス(×年2回) |
物件価格3,200万円 |
電話でお問い合わせ
ME不動産千葉
|
電話をかける 0120-362-312 ※「ホームページを見た」とお伝えください。 |
お問い合わせ番号をお伝えください RHS-9510360 |
|---|
ご来店していただいたお客様にギフト券3000円分プレゼント中です(1組1回限り)。お住まい探しならローンに詳しいME不動産千葉にお任せください。